
喜歡中式又擔心老氣?這兒有份參考答案!


本期的業主比較喜歡中式的家具,但傳統中式會有些老氣,于是選擇了更能適應時代潮流的現代中式風格來打造新家。本案的整體家具以實木多層為主,規整簡約的硬裝造型搭配舒適有調性的軟裝,共同營造一個有溫度、有內涵的家居空間。
地址 / 金昌苑
戶型 / 四室兩廳
面積 / 138㎡
風格 / 現代中式
設計施工 / 浙江南鴻裝飾
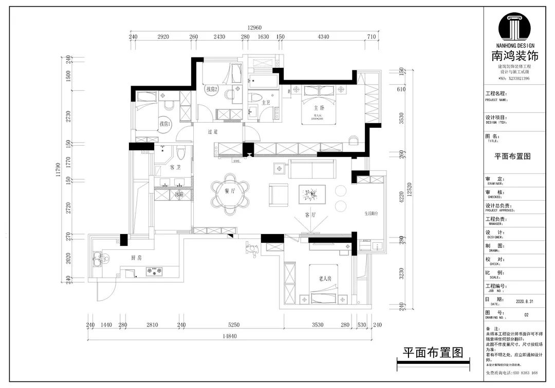
▼
戶 型 圖



客廳整體的色彩飽和度低,以灰色和木色為主,科技木護墻結合硬包,搭配適量的中式軟裝和留白手法,使空間保持了剛剛好的典雅質感,既不沉重,也不會過分隨意。




空間秉承傳統中式的華貴氣質,同時又添加入適當的現代元素,結合自由的光影渲染與綠意點綴,把詩意漸次浸染到生活的每個角落。



黑色的餐桌椅營造就餐的儀式感,護墻板面特意加入圓形意境裝飾,展現國風韻味。另一側墻面定制了餐邊柜,增強餐廳的實用功能。

明亮整潔的廚房,不論是設備還是物件,都能被完美地隱藏起來,保持住整體的干凈利落。木色的櫥柜搭配灰色的瓷磚鋪貼,空間足夠沉穩耐看。


主臥是一個米色的溫和空間,飄窗被打造為休閑區域,點綴飽和度高的紅、黃配色,讓區域更顯生動。

長輩房則以純粹簡潔的形式,讓空間籠罩在一種淡淡的寧靜和溫馨氛圍里,安穩沉靜,身心自在。

兒童房選擇孩子喜愛的色調,書桌部分與柜體緊密相連并且色彩統一,視覺上保持連貫,增添趣味性。
上一篇:情人節,給家里來點粉色的甜
下一篇:桂花城 | 這樣的簡奢空間太上頭
免費
免費申請戶型規劃
專屬設計師免費1對1全程服務
已經有3778人申請
24小時免費咨詢電話
400-8800-618
你家預算
108080元