
書房設計 | 愛看書的你不可錯過的干貨分享
作為一枚愛讀書的人兒,
深信書籍是人類精神最好的食糧,
家里怎么能少了一個看書的地方呢?
上次給大家帶來了閱讀角設計攻略
▼
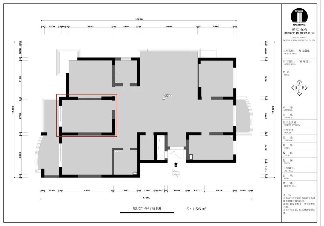
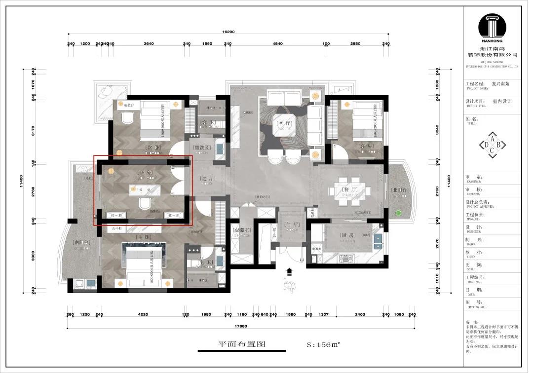
本期帶給大家的就是:書房設計攻略! 書房我們可以分為獨立書房與改造書房。 01 獨立書房 獨立書房不用多說,就是將一個單獨的房間作為書房使用,安靜,氛圍好,不易受打擾,適合戶型適中、寬裕的家庭。 ▲原始結構 ▲最終效果 普通的書房布置,擺放上書柜、書桌椅或儲物柜就足夠了,畢竟是用來工作學習的地方,實用就好,沒必要太花哨。 假如夫妻二人都有辦公需求,或家里有兩個孩子都要使用書房的話,記得設雙人“工位”哦~ 除此之外,可以在靠窗位置放一張舒適的沙發或單人椅,再擺上幾盆綠植,書房將更有休閑的氛圍! 我們還可以選擇在書房做榻榻米,或是墨菲床,來提供一部分客房和收納的功能,空間利用率更高哦。 書房榻榻米設計,平時用來儲物收納,客人來時可以當客房用 墨菲床,不用時隱形,完全不占空間 02 改造書房 改造書房,如果沒有多余的房間拿出來用,把其他的空間改造成或添加進書房的功能也是不錯的選擇。 ①陽臺 有時候戶型面積緊湊,陽臺如果只作為晾衣服的地方的話太浪費了,設計初期好好規劃,封起來做成書房挺香的~ 另外陽臺被包進室內的話,可考慮抬高做成地臺,區域劃分一目了然,書房的功能也一點不含糊。 ②臥室 臥室與書房結合,只要有最簡單的書桌椅即可,非常方便,適合并不特別需求獨立書房的人群。 空間再大一些,能添上兩個書柜就更完整了。 如果是大戶型的套間臥室,那就有了做出獨立書房的空間,可以進一步將工作區和休息區分隔開來。 ③客廳 客廳的面積一般是戶型中最大的,所以想將書房與客廳結合,方法有很多—— 比如將原有的墻體拆除,擴大客廳的空間并留出書房的位置。當然這種書房處于公共區域,會非常容易受干擾,可能更適合沒有那么多居住人口的業主家。 ▲原始戶型 ▲最終效果 如果想要相對獨立、不會受干擾的書房,也完全沒有問題: 空間再節約一些,可以將書桌的位置與沙發隔斷或電視墻隔斷結合,看起來更有整體性,通透感更強: 再比如現在流行一種“去客廳化”,不喜歡傳統客廳的業主不妨就將客廳直接設計為一個“大書房”,既大膽又有個性: ④餐廳 我們甚至可以直接設計在餐廳,總之全看自己對書房的需求是不是真有那么“剛需”了:
























免費
免費申請戶型規劃
專屬設計師免費1對1全程服務
已經有3778人申請
24小時免費咨詢電話
400-8800-618
你家預算
108080元