
十月設計師大會 | 節后開工,狀態拉滿,沖沖沖!
今天是10月14日周三,
距離國慶長假已過去了五天,
小伙伴們狀態調整得如何了呢?

長假結束的那幾天,
很多人的感想可能是↓

然鵝現實...

害,
所以還是努力工作,努力掙錢吧!

昨日十月份設計師大會上,
小鴻仔細看了看,
咱們南鴻小伙伴的工作狀態都相當不錯嘛!
來看看本次pk賽都有哪些精彩的作品吧~

MVP 風采
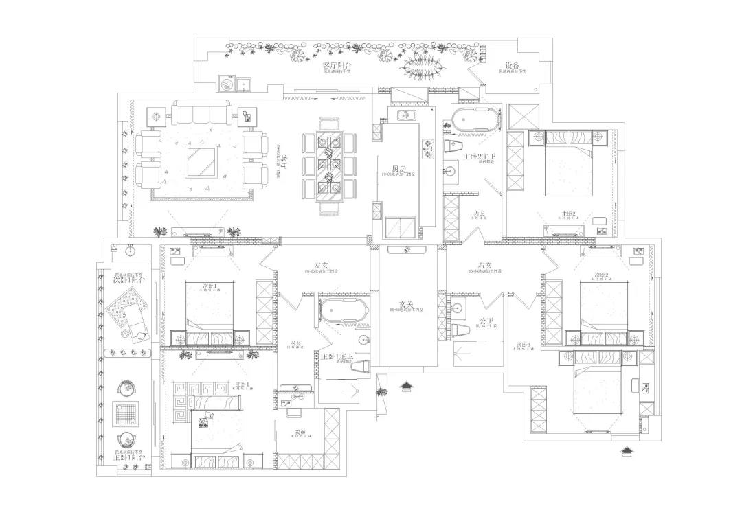
本次大會MVP作品,是來自我們富陽分部趙壯老師的新中式風格案例——富春和園。

新中式風格不是純粹的元素堆砌,而是將現代與傳統的元素結合在一起,以現代人的審美需求來打造富有傳統韻味的事物,讓傳統藝術在當今社會得到合適的體現,也因此,在近幾年的家裝市場上頗為流行。
- 戶型圖 -

本案在主色調、格局、細節等方面的布置都相當講究,由于作品已在公眾號發布過,在此就不一一展開啦,大家可以點擊下圖回顧哦!

其他精彩作品
濱江分部——臨江花園

本案面積177方,戶型結構方正,南北通透,設計師將原先的四房改造為三房,釋放出更多空間給到公共區域,同時打造了相當多的柜子來滿足業主的儲物需求。
- 戶型圖 -

- 實景圖 -

從各類材質選用都能看出許多經典的輕奢風元素,整體氣質優雅明媚,不妨期待一下最后的成品效果吧!
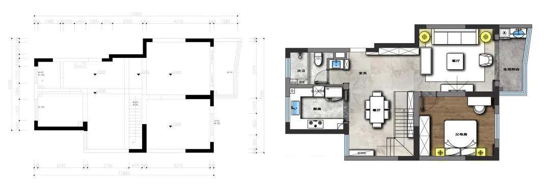
設計四部——水月苑

水月苑是一套130㎡的躍層住宅,風格定位在現代輕奢,設計師結合業主的偏好定下了最終方案。該案例目前正處于施工階段。
- 戶型圖 -

▲一層

▲二層
原戶型存在干區衛生間狹小、玄關位置被鞋柜阻擋而導致采光不足等問題,設計師在后期一一進行了調整。
- 效果圖 -


- 工地圖 -


臨平分部——金都夏宮

本案為241方美式輕奢風格項目,空間以金屬、皮革的中性色為主,將各類造型簡潔、線條流暢的家具組合搭配,營造出穩定、協調、溫馨的空間感受。
- 實景圖 -


▲客廳以灰色為主,加金屬線條點綴,電視背景墻使用對稱木飾面造型的護墻板,玄關一側使用大膽的綠色,與窗簾呼應。

▲餐廳與客廳相連,相鄰的樓梯弧度優美,在幾何線條之間是滿滿的靈動和美感。
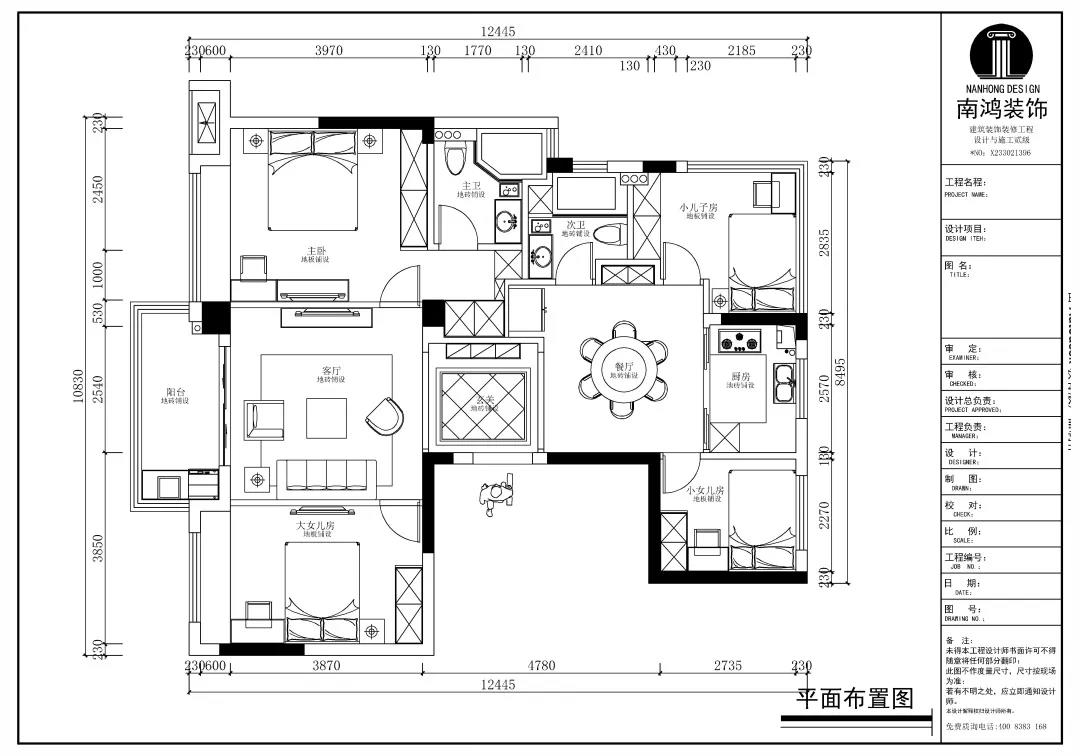
城西分部——海德公園

本案為簡歐風格的作品,女業主希望新家能直觀地有高端大氣上檔次的感覺,所以選擇了目前在市面上比較少見的歐式風格。
- 戶型圖 -

- 實景圖 -



設計一部——云河西苑

本案為122方美式風格的作品。房屋原本的結構不太規則,整套作品的設計過程可以說充滿了相當大的挑戰與曲折。
戳戳下圖回顧一下吧▼

頒獎時刻

▲祝董為業績突出與上月優勝的設計師頒獎
會議的結尾,李總上臺發表講話,闡述了南鴻本次總部大樓改造翻新的重大意義,進一步強調要全方位提升到店客戶的體驗,讓客戶對南鴻產品更有信任感,將南鴻最大的優勢——客戶滿意度——延續下去,早日實現業績的新高!
免費
免費申請戶型規劃
專屬設計師免費1對1全程服務
已經有3776人申請
24小時免費咨詢電話
400-8800-618
你家預算
108080元