
168㎡現代中古:學會這招「虛實手法」,你的新家也能如此明亮有格調!

期要為大家分享一套168方現代中古風的案例。
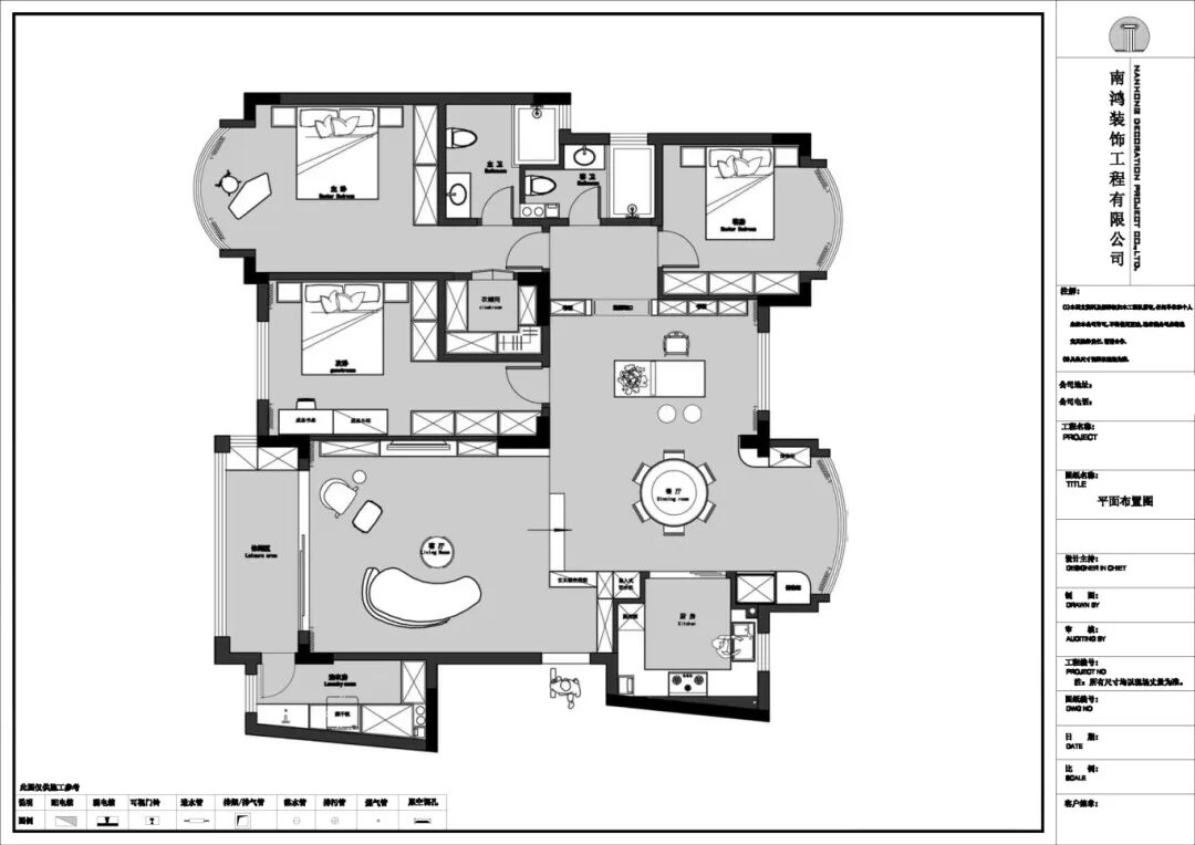
本案是為一對夫婦規劃的退休居所,室內布局依其生活習慣量身打造,動靜有序、分區明晰。公共區域力求開闊,可以承載會客、用餐、品茗、閱讀等不同場景,舒展自如亦貼合日常。 色彩上則以純凈的白色作簡明基底,搭配紅棕色胡桃木木作,形成層次分明的節奏,同時加入圓弧語匯與斯卡帕的疊級線條,于沉靜氛圍中暗藏韻律,為生活注入更多藝術格調。 ▲平面方案 玄關處,設計師巧用虛實手法,于入戶正對的墻面點綴端景,營造藝術氣氛。一側做懸空的玄關柜,佐入燈帶燈光,輕盈接住夜歸的腳步。 斯卡帕疊級造型搭配花器陳設,光影交錯間,形成動靜相宜的視覺韻律,玄關也自然地成為家的序章,讓情緒過渡極為流暢。 客廳的基調明亮而洗練,素雅墻面與無主燈頂面落實簡約設計理念,家具就是一個個視覺落點,為空間編排好了恰當的層次與流動的節奏。 電視背景墻以屏幕為視覺中心,向四周展開收納布局,令儲物與展示并進。木作柜泛起溫潤肌理,沉靜自在的敘事方式,悄然喚起居者與居室之間的情感共鳴。 黑色皮藝沙發低調穩重,兩側搭配落地燈與收納架,清晰的線條與高級的質感,共同為空間注入中古時尚氛圍。 錯層的高度差,使得客廳與餐廚之間,無須任何隔斷,就有了明確的區域劃分。兩層臺階鋪陳灰色大理石,以沉靜的質感與優雅的格調,實現場景的自然轉換。 餐廳以圓為引,利用圓形造型向上延展空間,垂落的一盞中古風蠶絲吊燈,如月華初瀉,為空間覆上一層朦朧濾鏡。搭配圓桌餐椅,進一步導向圍坐的親密感。 餐廳與廚房之間加入移門,同時外置部分電器,有效釋放廚房的操作壓力,同時兼顧日常使用的便捷與高效。無論是簡餐快煮,還是家宴款待,空間始終維持著從容不迫的節奏。 品茗區與餐廳融合,視野開闊,思維也隨之舒展。背景墻嵌入書柜,茶香氤氳間,捧書細讀或與友促膝而談,生活的詩意便在這方寸天地中自在流動。 廚房延續外部的色彩基調,明亮中包含溫柔的情緒。高柜融合嵌入式電器,統一櫥柜立面帶來干凈利落的感受,也讓下廚時光始終保持著悠然與愉悅。 動靜分界的門洞使用木皮包裹,塑造出清晰、堅實的輪廓,整體拱形造型,強化了空間的結構感以及入內的儀式氛圍。 主臥室使用了低彩度的半面壁紙,賦予空間沉靜又不失豐富的表情。衣柜嵌入藤編柜門與開放格的形式,在統一體塊中引入虛實變化,為空間注入更多自然活力。床尾搭配的是一組線條利落的實木梳妝桌,細微處展露對材質與比例的精心考量。 P.I. 項目信息 項目名稱:新明半島 設計風格:現代中古 項目類型:三室兩廳 項目地點:中國·杭州 項目面積:168㎡ 項目服務:設計·施工·硬裝·軟裝 全案設計 設計單位:浙江南鴻裝飾 施工單位:浙江南鴻裝飾




















免費
免費申請戶型規劃
專屬設計師免費1對1全程服務
已經有3778人申請
24小時免費咨詢電話
400-8800-618
你家預算
108080元