
新作 | Dream House · 圣誕季

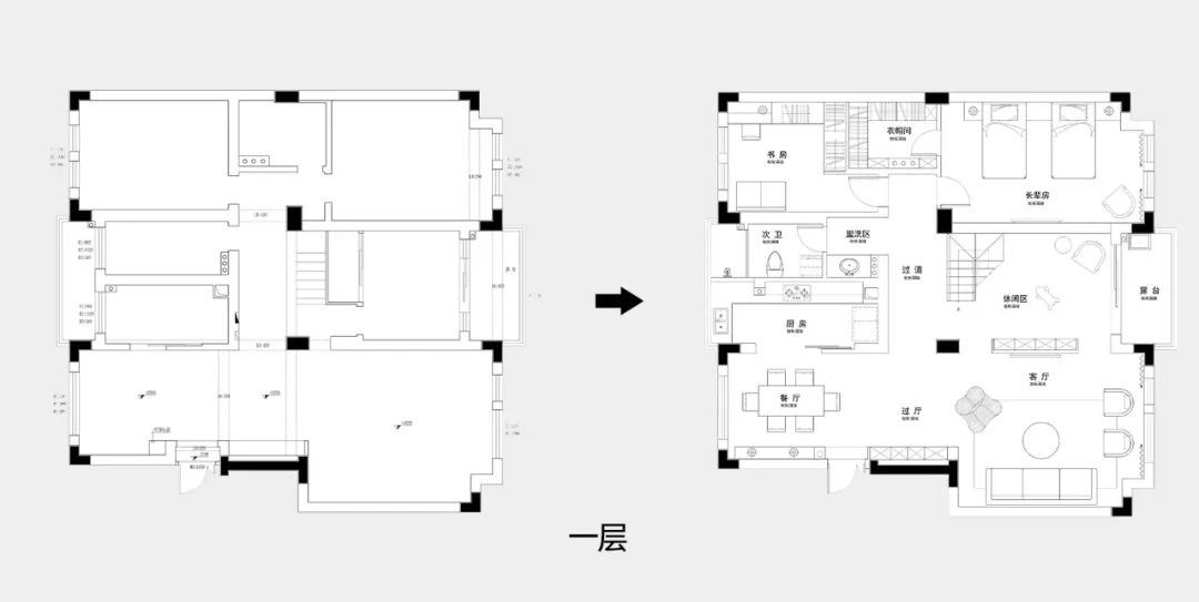
項目信息 ■ PROJECT INFORMATION 地址/ 世紀新城 城市/ 中國 杭州 戶型/ 躍層 面積/ 266㎡ 風格/ 現代美式 設計施工/ 浙江南鴻裝飾 作品前言. ABOUT HOME 以藝術編織樂章,唱響生活的贊歌;以自然裝飾空間,觸及幸福的真諦。 本案這套躍層來自一個三代同堂的大家庭,業主夫妻均為阿里員工,平日工作繁忙,最珍視的便是全家人聚在一起的親情時光。 這座宅邸不僅是與父母共享,也為國外留學歸來并成家立業的孩子規劃了生活空間,再加上兩只貓貓,人貓共居,和樂融融。 針對項目的整體方案規劃,設計師表示: “這套房子最大的亮點就是沒有奔著做某一個面、一個背景的強化,而是通過空間的巧思,去勾勒出互動性和趣味性,并留白讓軟裝家具為房子妝彩,讓屋主可以根據當下的心境,隨心所欲地將家打扮出不同的效果。” 空間在簡約的基底中搭配了大量天然材質,如實木、棉麻、布藝、藤編、磚石等等,使空間充滿純樸質感。 一系列美式鄉村風家具的選配,融合田園牧歌般氛圍和老時光的珍貴情懷,傳遞著溫馨而浪漫的感受。 微風穿過廳堂,光影漫步室內,宜人風光下,一個與自然共棲的居室徐徐呈現于眼前。 戶型改造. LAYOUT DESIGN ①一層廚衛空間向北陽臺做了拓展,增大使用面積。 ②一層南向臥室同客廳打通作為休閑區,為居室打造更豐富多元的使用情景。 ③二層主臥將暗衛改為衣帽間,原有的大衛生間一分為二,劃分出主次,滿足家庭成員各自的使用需求。 ④二層原南向起居室改成長輩房并分割出衣帽間,更改臺階位,利用梁柱關系做出空間造景,提升設計感和趣味感。 實景呈現. CASE APPRECIATION 客廳 // 比起傳統美式里濃厚的線條和裝飾,本案的現代美式則更注重自然與家庭主題的回歸。 客廳打底大白墻與木紋磚,顯出明亮通透的氣色,再將實木、棉布、亞麻等自然元素融合,打造樸素大方而又格外協調舒適的空間體驗。 白色棉麻沙發素雅清新,配合美式鄉村風木茶幾與鐵藝的吊燈,為居室烘托自然平和的溫馨感。 天氣晴好的時候,拉開窗簾,讓光盡情地灑進室內,一家人閑坐著,聊家長里短,說生活瑣事,平淡卻幸福。 客廳與休閑區開放互通,以拱形門洞相接,創造自由無拘的交流場景,讓空間因人被定義,因人而生色。 餐廳 // 一食一飲,三餐四季,因家人而愉悅,因團圓而有余味。 木白色的餐廳光線豐沛,寧靜舒適,耳畔是孩子的笑語,入目是長輩的慈容,內心只留平靜與幸福。 餐廳用橡木板桌搭配藤編餐椅與飛碟吊燈,每一個角度的畫面,都化為治愈舒緩身心的美妙存在。 樓梯 // 深色橡木材質包覆的樓梯結構上流暢自然,沉性營造美式風格的優雅姿態。 舒適的視覺感,源自設計對細節的精準把握與刻畫。 實木的天然紋理輕松呈現寫意又溫潤的生活場景,深淺木色的對照無形劃開邊界,象征著漫步而上一個全新的場域。 走廊 // 步隨樓梯上到二層,光影伴隨通鋪的木地板展開,為生活場域構建溫和又達觀的流動形態。 自然通透的語境下,藝術與生活一脈相通,人與空間亦共存共生。 跳脫常規的束縛,內里房間與外部樓梯廳之間特意利用梁柱關系設計了框景透景,讓景觀可以隨視角轉換而發生變化,營造更多趣味。 臥室 // 主臥溫柔嫻靜,統一和諧的色系與天然溫和的材質共同打造出一個完美休憩場域。 包覆肌理感與溫度的家具散發著如陽光照耀般的暖融之意,傳遞一份純凈的安逸。 長輩房以偏重傳統美式的家具勾勒出更為典雅的輪廓,讓規整的細節與生活的溫度并存。 在尋常的午后,閑坐沙發細品清茶,感受時光流逝的痕跡,慢慢點亮心底的柔光。






































免費
免費申請戶型規劃
專屬設計師免費1對1全程服務
已經有3759人申請
24小時免費咨詢電話
400-8800-618
你家預算
108080元